Home » Anlagen & Maschinen » Vakuumkochtechnik
Vakuum-Kochtechnik: optimale Produktschonung
Vakuum-Kochtechnik findet insbesondere dort Anwendung, wo ein schonendes Kochen, Ausdampfen oder Entgasen gefordert ist. Durch das Vakuum wird der Siedepunkt des Wassers abgesenkt, so dass ein Auskochen schon bei Temperaturen zwischen 50°C und 60°C möglich ist. Diese niedrigen Temperaturen bei der Prozessführung und der weitgehende Ausschluss von Sauerstoff sind ausschlaggebend für die Erhaltung von Farbe, Geruch, Geschmack sowie der Stückigkeit des Produktes. Speziell bei der Verarbeitung von Früchten verbreitet sich diese Methode zur Qualitätsverbesserung in fortschreitendem Maße.
Einsatzbeispiele sind die Herstellung von Konfitüren, Frucht-Brotaufstrichen, Fruchtzubereitungen und Dessert-Produkten. Auch Gemüse-Brotaufstriche und andere Produkte werden bereits unter Einsatz von Vakuum hergestellt. Die Vakuum-Kochanlagen von Steiner weisen eine Reihe von Merkmalen auf, die ein produktschonendes und effizientes Arbeiten ermöglichen:
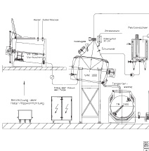
Behälter und Rührwerk sind liegend angeordnet. Eine leichte Neigung von
ca. 8° zum Auslauf hin sorgt in Verbindung mit einem Kugelventil für eine
sehr gute Restentleerung des Produktes.
Helmut Riecken (
Telefon 0 21 54 / 91 38-23 | Fax 0 21 54 / 31 66
E-Mail riecken@florin.de
Das horizontale Rührwerk ist mit schräg angestellten Rührflügeln und beweglichen Abschabern bestückt. Durch diese Kombination, zusammen mit der Neigung des Behälters, wird eine sehr gute, dabei aber schonende Durchmischung sowie ein beschleunigter Austrag erreicht.
Die Abschaber verhindern ein Anbrennen des Produktes an der beheizten Wandungsfläche, insbesondere bei hohen Zuckergehalten.
Der Brüdendom ist mit seinem großen Durchmesser und seiner Höhe so ausgelegt, dass sich beim Vakuumziehen keine hohen Strömungsgeschwindigkeiten entwickeln können. Dadurch wird ein Verschleppen von Produktanteilen in den nachfolgenden Brüdenkondensator verhindert.
![]() |
|
|
Abb. |
Einer Schaumbildung und damit verbundenem Produktverlust wird durch spezielle Sonden im oberen Bereich des Brüdendomes begegnet. Bei Meldung der Sonde wird das Vakuum kurzfristig gebrochen, so dass der Schaum zusammensinkt.
Die Kondensation der Brüden erfolgt in einem nachgeschalteten Kondensator, der als Rohrbündelwärmetauscher in stehender oder liegender Bauform ausgeführt ist. Das Kühlmedium, meistens Wasser aus einem Kühlkreislauf, wird so zwangsgeführt, dass ein optimaler Wärmeaustausch entsteht. Die große Dimensionierung, auch dieses Anlagenteils, ermöglicht einen Parallelbetrieb mehrerer Kochkessel.
Für die genaue Einhaltung der geforderten Druckwerte sorgt eine Vakuumregelung. Diese besteht aus einer Druckmesssonde sowie einem angebauten, durch eine Regelelektronik angesteuerten, Falschluftventil. Dieses Ventil ist so ausgelegt, dass ein fast proportionales Öffnen des Ventils über einen angebauten Stellmotor möglich ist.
Die Beschickung der Kochanlage kann durch verschiedene Methoden erfolgen. Ein Ansaugen des Produkts unter Vakuum, das Einbringen von Rohstoffen durch Pumpen und über Durchflussmessgeräte sowie auch einfaches, manuelles Beschicken über ein großdimensioniertes Mannloch sind möglich.
Kleinkomponenten wie z. B. Aromastoffe können bei laufendem Rührwerk von unten in den Kessel eingesaugt werden. Hierdurch wird eine sehr schnelle und gleichmäßige Verteilung gewährleistet.
![]() |
|
|
Abb. |
Der Austrag des Produktes kann über produktschonende Pumpen, z. B. Kolbenpumpen, oder durch Beaufschlagen des Rührbehälters mit steriler Druckluft oder Schutzgas erfolgen. Durch die Drucküberlagerung wird eine sehr schnelle und trotzdem produktschonende Entleerung erreicht.
Vakuum-Kochanlagen können sowohl als Einzelapparate oder in Verbindung mit weiteren Aggregaten als komplette Konfitürenanlage angeboten werden.
Lieferbar sind Blockbrecher für das Zerkleinern von Tiefkühlblöcken, Auftauschnecken, Vorkochanlagen, Temperier- und Pufferwannen, Pektinmischer, Zitronensäurelöser und dazu passende Pumpen und Dosiergeräte. Für praktisch alle Anforderungen des Anwenders können individuelle Anlagenkonzepte entwickelt werden. Maßgeschneiderte Lösungen sind damit auch für spezielle Produktionsprogramme lieferbar.
Überblick über Anlagen & Maschinen:
- Röntgentechnik
- Optische Verleseanlagen
- Verschließtechnik - Weissblech-Verpackungen
- Verschließen unter Vakuum - Vakuumverschließmaschinen von Ferrum
- Schneidemaschinen für Gemüse
- Vakuumkochtechnik - optimale Produktschonung
- Prozessanlagen für Feinkostprodukte
- Kochtechnik für den universellen Einsatz
- Pasteurisations- und Kühlanlagen
- Abfüll- und Dosiertechnik
- Abfüllanlagen für stückige & sperrige Füllgüter
- So funktioniert die Mikrowelle






